Opis
U tijeku su pripreme za gradnju manje stambene zgrade u malom turističkom mjestu Makarske rivijere – Drvenik. Zgrada će početi sa izgradnjom 15.10.2024 godine, na izvrsnoj lokaciji samo par metara od mora. U ponudi su stanovi na prizemlju, prvom i drugom katu sa pripadajućim terasama i vrtovima, ukupno 7 stambenih jedinica. Svaki stan ima zaseban, vlastiti ulaz sa vanjske strane zgrade. Svaki stan će imati otvoren pogled na more od kojeg vas dijeli samo šetnica. Svakom stanu pripada jedno parkirno mjesto sa sjeverne strane građevine! U izgradnji će se koristiti iznimno kvalitetni materijali, vrhunska zvučna i toplinska izolacija. Svaka prostorija u stanu će biti klimatizirana, svaka soba sa parketom/keramikom, u kupaonici i kuhinji keramičkim pločicama prve klase, balkonska ograda od kaljenog stakla, kupaonice u potpunosti završene sa podnim grijanjem, podno grijanje kroz cijeli stan, protuprovalnim vratima na ulazu, tv, satelit i internet priključcima u svakoj prostoriji, vanjskim PVC otvorima s roletama na struju, itd…Moguće je sudjelovati u odabiru keramike, parketa, sanitarija. Ovisno o načinu i dinamici plaćanja moguće je dobiti popust! Drvenik je slikovito malo mjesto smješteno na Makarskoj rivijeri duž obale Jadranskog mora sa pestotinjak stalnih stanovnika. Nalazi se između većih gradova Makarske (33km) i Ploča (32km) te je poznat po svojim prekrasnim šljunčanim plažama i kristalno čistom moru. Osim što nudi uživanje u sunčanju i kupanju, Drvenik također privlači posjetitelje svojom mirnom atmosferom i prekrasnim pogledom na okolne planine. Mjesto je idealno za opuštajući obiteljski odmor ili romantični bijeg iz svakodnevice.
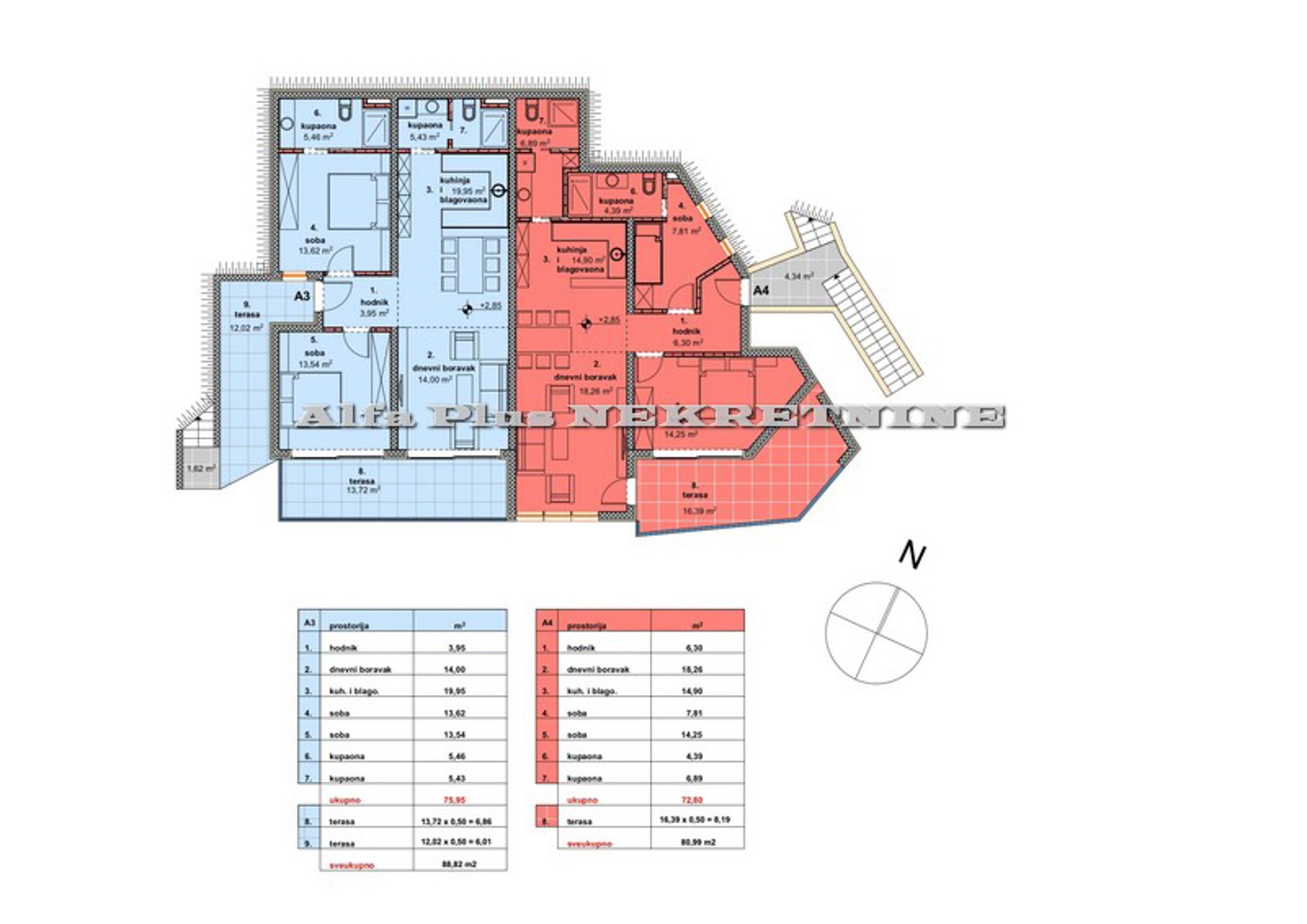
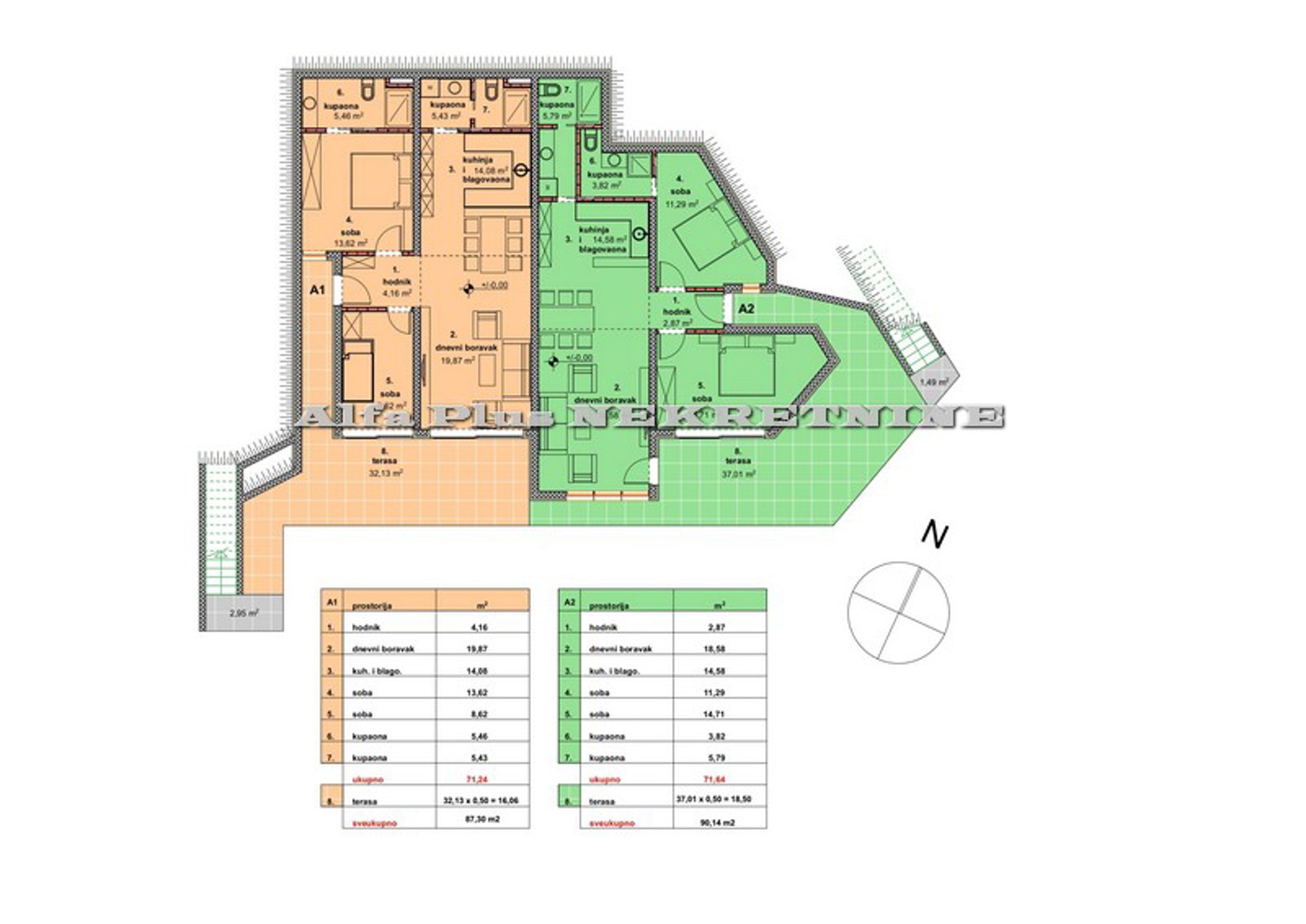
STRUKTURA I RASPOLOŽIVOST STANOVA:
APARTMENT FLOOR SIZE / m2 PRICE €/m2
TOTAL €UR STATUS
A1 Gr. FLOOR 87,30 6500 567.450 AVAILABLE
A2 Gr. FLOOR 90,14 6500 585.910 AVAILABLE
A3 I 88,82 6500 577.330 AVAILABLE
A4 I 80,99 6500 526.435 AVAILABLE
A5 II 88,82 6500 577.330 AVAILABLE
A6 II 82,77 6500 538.005 AVAILABLE
A7 III — — — SOLD








